Skip to main content

Love’s Farm

Project Details

Collaborative design coding

St Neots is strategically positioned to strongly benefit from the widespread economic development that is already happening in the Oxford-Cambridge corridor and accordingly, there has been unprecedented growth of the town in the past 15 years.

Approximately 4,000 new homes are planned for St Neots over the next 15 years which it is estimated will bring approximately 1,500 working age adults into the town.
The design code
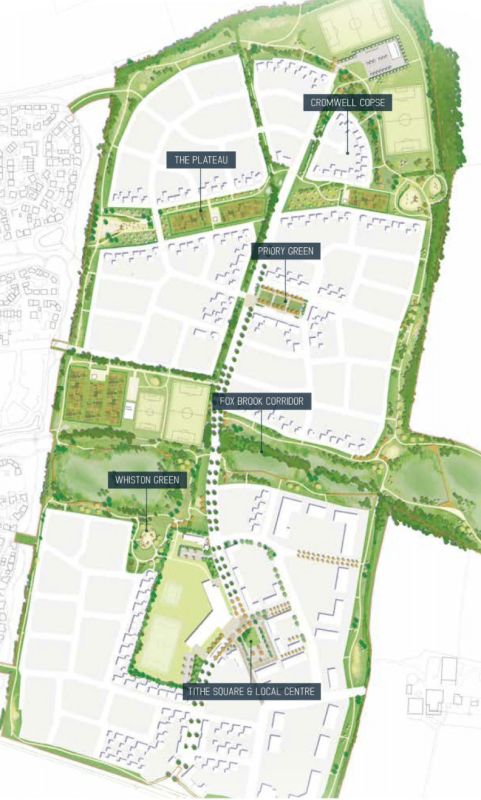
Define were appointed following the grant of Outline Planning Permission to produce a Design Code for the latest expansion to the town of approximately 1,000 new homes including a new primary school, local centre and employment situated on the very east of the expanded part of St Neots. The principles set out in the Design Code sought to ensure that the new development would be entirely connected to previous phases of expansion, as well as the wider extent of St. Neots whilst creating a sustainable walkable neighbourhood where living, working, learning, and leisure were all in close proximity.

The Design Code included detailed principles setting out the requirements for a cohesive network of green infrastructure providing a variety of open space functions to serve new development and be accessible to existing neighbourhoods.
    Design code approved
    In 2022, Huntingdonshire District Council (HDC) have approved the Love’s Farm East Design Code that Define prepared to facilitate the delivery of the extension of a new community at the Love’s Farm development in St. Neots, Cambridgeshire. The Design Code was produced collaboratively through a focussed and engaged process with HDC and Cambridgeshire County Council officers as well as existing residents already living on the developed part of the new community.

    The Design Code is focussed on high quality placemaking principles that were established in the original Outline Planning Permission that promotes the formation of communal life with health and wellbeing at its heart. The proposals, which include the provision of a local centre and primary school, will provide over 1,000 new homes set within a multi-functional network of open spaces connected by active travel routes that link to the wider expansion and St. Neots Station.

    Project Team

    Wes Sedman

    Maria Zouroudi

    Nathan Beirne

    Let’s define your next project
    Curious about how we could work together? Our team of planners, designers and landscape architects are ready to help bring your vision to life.