Skip to main content

Platinum Jubilee Park, Whitecliffe

Project Details

Providing connections for people to the natural landscape

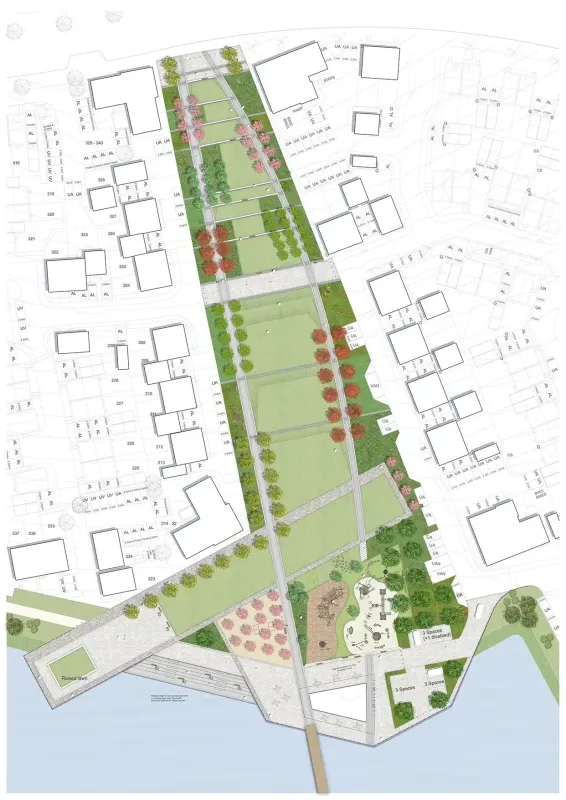
Working on behalf of our client Camland, we developed landscape designs from concept through to construction for this prestigious new public park in Ebbsfleet. The proposals reinforced our masterplanning work for the wider residential area of Castle Hill South with both having the same simple message: to connect people to the chalk cliffs and lake.

Prior to designing the park, we developed the residential masterplan to maximise views out to the water, shaping the development areas and creating an aperture in the built form. Following this we designed the park to enhance these views through terracing, waterfront design and tree vistas.
The design
The park was designed in a series of terraces that not only emphasised the spectacular views, but also provided areas that could be used for informal recreation like frisbee and 5 a side football. This was an important consideration given the site has very few areas that are flat given the challenging topography.

As part of the project we provided designs for two large foot bridges and jetties spanning out across the water. The bridges have been detailed in corten steel to reflect the site’s industrial heritage. The designs were created to encompass the angles found in old machinery, but utilising modernist forms.

At the lower part of the site there is a large play area which we designed in conjunction with TimberPlay UK. The design provides a wide range of play opportunities for all ages and abilities as well as utilising natural boundaries with level changes rather than fences.
Image courtesy of Cohesion Plus

    Project Team

    Joe Gerrard

    Alex Agnew

    Nathan Beirne

    Let’s define your next project
    Curious about how we could work together? Our team of planners, designers and landscape architects are ready to help bring your vision to life.